| Categorías | ACB |
| Modelo | TEJO1 |
| Categoría de producto | Disyuntor de tipo universal |
| Corriente nominal | 200A-6300A |
| Nombre del producto | disyuntor de aire |
| Código de diseño | 1 |
| Estándar | IEC60947-2/GB14048.2 |
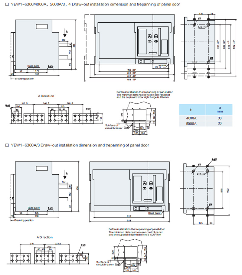
| Polo | 3P 4P |
| Estructura del producto | C=Tipo cajón,G=Tipo fijo |
| weisita | www.sofielec.com |

□ Estándar: GB14048.2 IEC60947-2
| Nombre | Detalles |
| Categoría de producto | Disyuntor de tipo universal |
| Código de diseño | 1 |
| Rango actual | 1000, 2000, 3200, 4000, 6300 |
| Polo | 3P, 4P |
| Corriente nominal | 200 A ~ 6300 A |
| Estructura del producto | C=Tipo cajón,G=Tipo fijo |
■ Resumen del producto
El interruptor automático de aire de la serie YEW1 (en adelante, interruptor automático) se aplica en la red de distribución con CA 50 Hz, voltaje nominal 690 V (o inferior) y corriente nominal 200 A-6300 A. Se utiliza para distribuir energía eléctrica, proteger el circuito y la fuente de alimentación contra daños por fallas, como sobrecarga, bajo voltaje, cortocircuito, conexión a tierra monofásica. El interruptor automático tiene una función de protección inteligente y su protección selectiva es precisa. Además, puede mejorar la confiabilidad de la fuente de alimentación y evitar apagones innecesarios. Al mismo tiempo, posee una interfaz de comunicación de tipo abierto para liberar cuatro funciones remotas, a saber, control remoto, regulación remota, medición remota y comunicación remota, para cumplir con los requisitos del centro de control y el sistema automático.
Este disyuntor tiene función de aislamiento, representada por símbolos como "-----"
■ Parámetros técnicos
□ Corriente nominal del disyuntor
| Corriente nominal graduada del marco lnm(A) | Corriente nominal ln(A) |
| 1000 | 200, 315, 400, 500, 630, 800, 1000 |
| 2000 | 630, 800, 1000, 1250, 1600, 2000 |
| 3200 | 2000, 2500, 2900, 3200 |
| 4000 | 3200, 3600, 4000 |
| 6300 | 4000, 5000, 6300 |
□ Capacidad nominal de ruptura de cortocircuito y corriente soportada de corta duración
| Corriente nominal graduada del marco lnm(A) | Voltaje | 1000 | 2000 | 3200 | 4000 | 6300 |
| Capacidad nominal de interrupción máxima de cortocircuito lcu(kA) | 400 V | 45 | 80 | 85 | 85 | 120 |
| 690 | 25 | 50 | 65 | 65 | 85 | |
| Capacidad nominal de conexión de cortocircuito n×lcu(KA)/cosΦ | 400 V | / | 176/0.2 | 220/0,2 | 220/0,2 | 264/0.2 |
| 690 V | / | 105/0,25 | 143/0.2 | 143/0.2 | 187/0.2 | |
| Capacidad nominal de corte en cortocircuito lcs(KA) | 400 V | 30 | 50 | 65 | 65 | 80 |
| 690 | 20 | 40 | 50 | 50 | 70 | |
| Capacidad nominal de resistencia de corta duración lcw(KA)/1s | 400 V | 30 | 50 | 65 | 65 | 80 |
| 690 V | 20 | 40 | 50 | 50 | 70 |
Nota: La capacidad de ruptura en la tabla es la misma que la de la línea ascendente y descendente.





> Sofielec expone en la Exposición Asia Power Electrician and Smart Grid, del 21 al 23 de julio de 2021, Pazhou Hall, Guangzhou, Stand No. 9.2, Hall H11.
Estimados todos, exhibiremos en la Exposición Asia Power Electrician and Smart Grid, del 21 al 23 de julio de 2021, Pazhou Hall, Guangzhou, Stand No. 9.2, Hall H11.
> Función y principio de funcionamiento, parámetros técnicos y selección de RCCB/ELCB
(1) Función: Se utiliza principalmente para cortar rápidamente el suministro eléctrico cuando se produce una descarga eléctrica o una fuga, para garantizar la seguri...
> Resumen de conocimientos comunes sobre interruptores diferenciales/disyuntores diferenciales
1. El disyuntor de fugas de la serie CDL7 es adecuado para CA 50 Hz, voltaje nominal de 400 V, corriente nominal de 63 A y el rendimiento de la acción no tiene nada ...
> 16 puntos de conocimiento le permiten comprender completamente el principio de funcionamiento y la función del RCCB/ELCB
1. Qué es un interruptor diferencial/interruptor diferencial eléctrico (RCCB/ELCB)? Respuesta: El RCCB/ELCB (interruptor de protección contra fugas) es un dispositiv...




